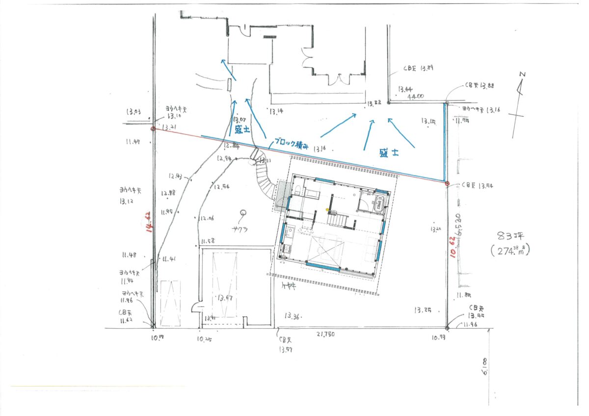
吉野1丁目、ロビンフッド近くに約83坪の売地をお預かりしました!
堀車庫で高低差があるため、開放感と日当たりの良さが魅力です♪
スタディハウスが配置できます♪
吉野小学校まで1.4km(徒歩21分)、吉野中学校まで650m(徒歩9分)
建築条件はありません!
詳細はシンケン不動産松山(080-3588-4755)までお尋ねください
住所:鹿児島市吉野1丁目31-25の一部
交通:帯迫北バス停 徒歩3分
価格:1660万円
坪単価:20万円
土地面積:82.9坪(274.38m2)
| 所在地 | 鹿児島市吉野1丁目31-25の一部 |
| 私道面積 | - |
| 権利の種類 | 所有権 |
| 借地期間 | - |
| 地目 | 雑種地 |
| 都市計画 | 市街化区域 |
| 用途地域 | 1種低層 |
| 建ぺい率 | 50% |
| 容積率 | 80% |
| 国土法届出 | 不要 |
| 接道幅等 | 南6m |
| 接道種別 | 公道 |
| 接道接面 | 南約21m |
| 接道状況 | 一方 |
| 建築条件 | 無 |
| 設備 | |
| 引渡時期 | 要相談 |
| 現況 | 庭木あり |
| 取引態様 | 専任媒介 |
| 備考 | 水道引き込み、造成費用別途 |




















